JLH立式珩磨机


一、 机床参数
1、 机床外形尺寸:2670(宽)×3500×5550(高)
2、 工作台规格:双装夹、三工位,伺服行走,功率2KW
3、 冲程长度:2550
4、 加工孔径范围:18-450
5、 工件外径最大夹持范围:30-550
6、 主轴电机:5.5KW
7、 进给电机:1000W
8、 升降往复电机:5.5KW
9、 往复速度:0-25米每分,可调
10、 传感器量程:0-1000牛米,精度0.5级
11、 加工精度H6表面粗糙度Ra≤0.2 圆度0.01
12、 数控系统:基于Windows平台全数字化工控机系统
13、 带自动检测和自动修复功能
14、 电源要求:电压:380伏特、3相、50赫兹,电压允许波动幅度为10%
15、 冷却液容量:500升
16、 过滤系统:磁性过滤+二级铜网过滤
17、 主轴转速:20-200转每分可调
 
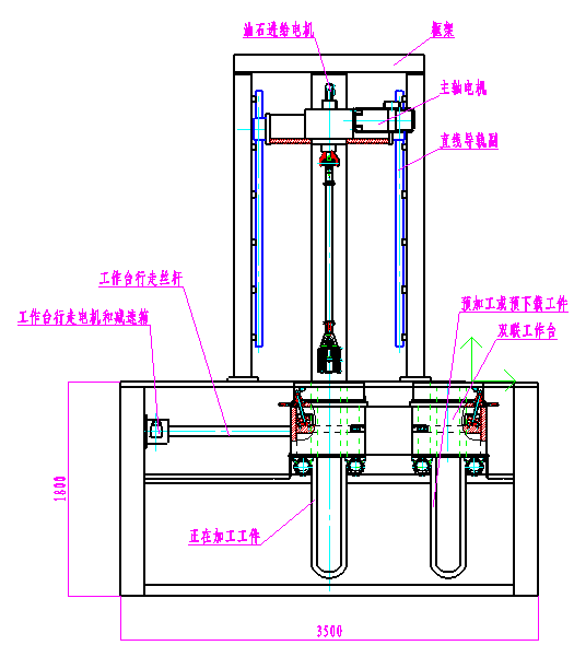
二、 机床结构简介
机床主要由机架、双联工作平台、主轴箱、往复机构、配重平衡机构、冷却系统、电控系统、外观壳体等组成。
1、 机架由焊接件底座、三根焊接竖梁和“T”顶梁构成。
2、 工作平台为双装夹,三工作位置。由伺服电机价丝杆控制工位。
3、 主轴箱由涡轮、蜗杆、箱体、传感器、主轴电机、进给电机等组成。
4、 往复机构由直线导轨副、高速传动滚珠丝杠、涡轮蜗杆减速机、往复电机等组成。
5、 配重平衡机构由两组链轮机构、承重滚子链、配重块、配重块滑轨等构成。
6、 冷却系统:为了清淤方便,配独立油箱,两级铜网过滤,油箱上装有磁性分离器和油泵。
7、 电控系统由电控柜、触摸屏等组成
8、 外观壳体由各种钣金件组成,美观,整洁。
三、 工具配置
1、锥心式珩磨头:S4-AL100-40 、S4-AL100-45
2、齿轮齿条进给磨头。HB-50(50-76mm),锥心式珩磨头
          3、磨杆分两种,50-76以下,配直径42mm磨杆,40-50配直径25mm磨杆
四、 方案附图
                去掉外壳正面图


去掉外壳侧面图


x